En Moyobamba
Municipalidad tiene la titularidad de 14 hectáreas. que le fueron otorgadas en el año 2017, se está gestionando la solicitud de las 28 hectáreas, entidades beneficiadas con terrenos no han construido ni cercado sus espacios situación ha sido observado por CORPAC, predios cuentan con el saneamiento para iniciar construcciones
En una entrevista con VOCES, el Gerente Municipal de la Provincia de Moyobamba, Juan García Tello, detalló los avances de las obras en curso y el estado de las gestiones para recuperar la totalidad del terreno del ex aeropuerto.

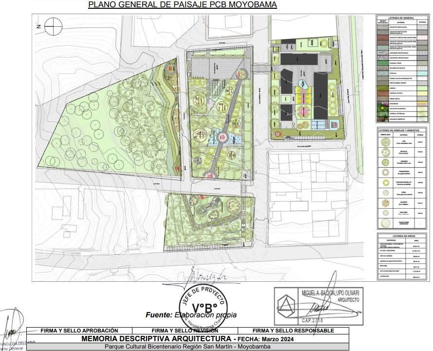
Parque Bicentenario: Acelerando la Donación y el Inicio de Obra
El Gerente brindó noticias positivas sobre el Parque Bicentenario, una obra crucial para la ciudad. Confirmó que la semana pasada, representantes del Ministerio de Cultura (Mincul) visitaron el terreno junto al equipo técnico y al señor alcalde para la entrega previa a la empresa constructora.
El área donada por la municipalidad para el parque supera los 4 mil metros cuadrados y se proyecta como un espacio integral que incluirá: áreas administrativas, aulas para talleres, una concha acústica, amplias áreas verdes y un museo.
El Gerente indicó que el desalojo de las antiguas instalaciones (Subgerencia de Maquinaria, almacén y vivero municipal) estará completado al 100% esta misma semana. A pesar de que la supervisión de la obra aún se encuentra en proceso de licitación por parte del Mincul, se ha informado que la empresa constructora iniciará los trabajos con un inspector para no demorar el proyecto.
El Terreno del Ex Aeropuerto y la Gestión ante CORPAC
Respecto al terreno del ex aeropuerto de Moyobamba, el Gerente señaló que las gestiones están siendo lideradas directamente por el señor alcalde, quien viajó a Lima para este fin.
Al ser consultado sobre la necesidad urgente de sanear y delimitar el predio para evitar futuras invasiones, el Gerente aclaró un punto importante: la Municipalidad Provincial de Moyobamba solo tiene la titularidad de 14 hectáreas que le fueron otorgadas en el año 2017. En esta área, la municipalidad ya destinó terrenos a varias instituciones.
El Gerente lamentó que algunas de estas entidades, a la fecha, no hayan construido ni cercado sus espacios. Esta situación ha sido objeto de una observación por parte de CORPAC. No obstante, el funcionario aseguró que estos predios ya cuentan con el saneamiento necesario para iniciar las construcciones.

La Propuesta de reversión total y la visión de un polideportivo
La entrevista se centró en la iniciativa de solicitar la reversión de la totalidad del terreno (28 hectáreas) a favor de la municipalidad. El Gerente confirmó que se está gestionando la solicitud de las 28 hectáreas ante CORPAC, aunque reconoció que la entidad paraestatal tiene «algunos lineamientos distintos» sobre el destino del terreno. La municipalidad insiste en la transferencia total.
Se enfatizó la visión de aprovechar esta magnitud de terreno para un proyecto de gran envergadura, como un gran polideportivo o un estadio moderno con proyección internacional, algo que la juventud de Moyobamba necesita urgentemente.
El Gerente recordó el problema histórico del actual escenario deportivo, donde la construcción de tribunas de hace 15 años aún no ha sido liquidada, impidiendo cualquier inversión. Criticó la burocracia del IPD y su centralización de presupuestos, señalando que Moyobamba es probablemente la única ciudad sin un estadio municipal adecuado.
Finalmente, el Gerente concluyó con un llamado a la acción: «Tenemos que pasar de la idea a la acción ya. Creo que la gestión del ingeniero Ernesto Peña debe marcar ese norte, por lo menos con un acto reivindicativo y dejar encaminada para la próxima gestión» El objetivo es que CORPAC ceda las 14 hectáreas que corresponden a la municipalidad, lo que permitiría el desarrollo de un gran estadio para Moyobamba con parques eco amigables para todas las disciplinas, la juventud no tiene espacios, tenemos que pensar y actuar por ellos como una ciudad con visión moderna.



